Customer Name:
Frame / Door
Frame Type
F
KF
KA
K2A
NKA
NK2A
Door Height
6'8"
7'
8'
Custom
Custom Door Height
Door/Frame Spec
Select
Masonite
Masonite-Premdor
Masonite-Stanley
Taylor Door
Therma-Tru Fullsize (TTFS)
Therma-Tru Undersize
IDP / Redispec / Timely
Milliken
Steelcraft
Amweld
Ceco
Curries
Fenestra
Fleming
Gensteel
Kewanee
Mesker
Pioneer
Republic
Custom
Door Thickness
1-3/8"
1-3/4"
Other
Custom Door Thickness
Header
Header Width
Select
1'6"
1'8"
2'0"
2'4"
2'6"
2'8"
2'10"
3'0"
3'4"
3'6"
3'8"
4'0"
4'6"
5'0"
5'4"
5'6"
6'0"
7'0
Double
No
Yes
Astragal
No
Yes
Astragal Type
Select
Z
Flat
Hardware
Astragal Width
Select
1/2"
5/8"
11/16"
3/4"
13/16"
7/8"
Custom
Header Options
Parallel Closure Reinforment
Regular Closure Reinforment
Reversible Flush Bolt
Ball/Roller Catch
Surface Vertical Rod Reinforcement
Concealed Stop
Concealed Closer
Sill
Sill Type
Select
ADA
ADA Height
HS
OBS
NS
Other
Sill Prep
Select
AFCO Fixed HS
AFCO Adjustable High Sill - Choc. Cap
AFCO Adjustable High Sill - W.G. Cap
IDP Aluminum High Sill w/ Thermal Break
Two Piece High Sill
Outswing High Sill
Outswing Bumper Sill
IDP ADA Saddle Sill
IDP ADA Tile Back Sill
IDP ADA w/ Thermal Break Sill
Endura ADA
Other
Sill Cope
Cope
No Cope
Sill Holes
Holes
No Holes
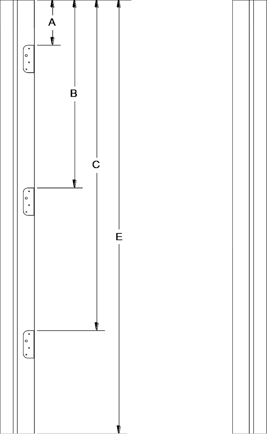
Hinges
Hinge Size
3 1/2 Inch
Hinge Pattern
Non Template
Hinge Type
1/4" RADIUS
5/8" RADIUS
Bores
# of Bores
0
1
2
3
Packaging Options
Sill Included
No
Yes
Main Jamb Kits
Boxed
Bulk
Trim Kits
Single Boxed
3 Per Box
Bulk
Sills
In Jamb Kit
Bulk
N/A
Weatherstripping Color
Brown
White
N/A
Weatherstripping
Boxed
Bulk
N/A
Hardware Bags
Boxed
Bulk
N/A
Pre-Hang Bag
Boxed
Bulk
N/A
Hardware Color
Nickel
Brass
N/A
Production Notes:
Package / Ship Notes:
A
B
C
D
E
F
G
H